서초구 양재역 코네스트 입주 상세 후기 (신혼부부 36c형, 역세권 청년주택 conest 임대료 보증금 평면도 실측사이즈)
- 일상
- 2024. 6. 1. 17:17
역세권 청년주택 양재역 코네스트에 당첨되어 입주하게 되었습니다.
저희는 신혼부부형으로 지원을 하였고 코네스트는 저희의 첫 신혼집이 되었습니다.
코네스트는 양재역 1번 출구에서 2분거리 정도로 큰 대로변에 위치해 있습니다.
총 379세대로 청년, 신혼부부들을 위한 17A, 23A, 23B, 23C, 23D, 23E, 30A, 30B, 36A, 36B, 36C, 36D의 다양한 타입이 있습니다.
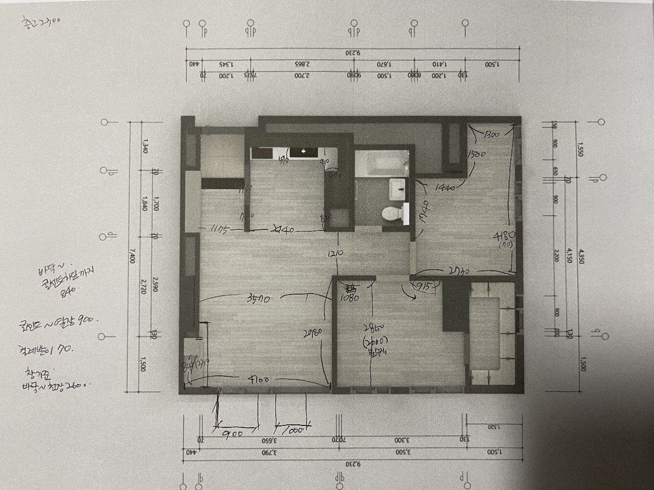
저희가 당첨된 타입은 이중 36C1입니다.


타입들 중 가장 컸고 배치와 드레스룸이 존재하는 게 마음에 들었습니다.
아래는 실측 사이즈입니다.


먼저 건물 외관입니다. 아침과 저녁입니다.


먼저 현관을 들어섰을때 거실 모습입니다.
현관 옆으로는 신발장이 있습니다.
코네스트는 빌트인으로 가전제품(시스템 에어컨, 공기청정기, 하이라이터, 냉장고, 세탁기) ,음식물 처리기 등 이 있습니다.

현관-주방-화장실 입니다.
주방에 세탁기와 냉장고가 설치되어 있습니다.

주방은 브라운톤으로 깔끔합니다.

다음은 주방에서 바라본 거실입니다.

욕실입니다. 욕실에 욕조도 설치되어 있습니다.

다음은 작은방입니다.

작은방에는 움푹 파인 공간이 있습니다.
저 공간에 저희는 건조기를 설치할 예정입니다.


다음은 큰방입니다. 드레스룸이 함께 있습니다.
거실과 큰방 천장에는 에어컨이 있습니다.(작은방은 에어컨X)

큰방 드레스룸입니다.
크진 않지만 창고 겸 드레스룸으로 요긴하게 잘 쓸 거 같습니다.

LED 전등이 매립식으로 있습니다.

거실의 에어컨과 공기청정기입니다.

거실에서 바라봤을 때의 모습입니다.

거실에도 왼편에 파인 공간이 있습니다.
어떤 공간으로 사용할지 고민이 됩니다.
서랍 2개와 3단 수납공간이 있습니다.

마지막으로 코네스트 보증금과 입대료 입니다.

이상 코네스트 입주 포스팅을 마치겠습니다.
봐주셔서 감사합니다.
